全归类师在线,免费帮你解决商品归类疑难问题

 找回密码
 注册

QQ登录

只需一步,快速开始

手机号码,快捷登录

手机号码,快捷登录

在线
客服

在线客服服务时间: 9:00-24:00

选择下列客服马上在线沟通:

快速
发帖

客服
热线

010-62010715
7*24小时客服服务热线

关注
微信

关务资讯公众号
顶部
海关AEO认证申请全攻略2022年预归类师考试秘籍中国船务课程视频2020年关务水平测试培训
申请进出口商品预归类视频!AEO认证政策解读商品归类在线解答海关AEO认证,100%通过
AEO认证服务网北京岸谷关务官网预归类服务-归类师权威操作预归类考试网
查看: 2854|回复: 0

关于武汉天河机场保税物流中心及配套项目规划方案的批前公示

[复制链接]
发表于 2021-8-10 11:57:46 | 显示全部楼层 |阅读模式
2021年8月9日,武汉市黄陂区自然资源和规划局发布了关于武汉航港物流有限公司武汉天河机场保税物流中心(B型)及配套项目规划(建筑)方案的批前公示,全文如下所示!

关于武汉天河机场保税物流中心及配套项目规划方案的批前公示-1.jpg

(武汉市黄陂区自然资源和规划局公告)
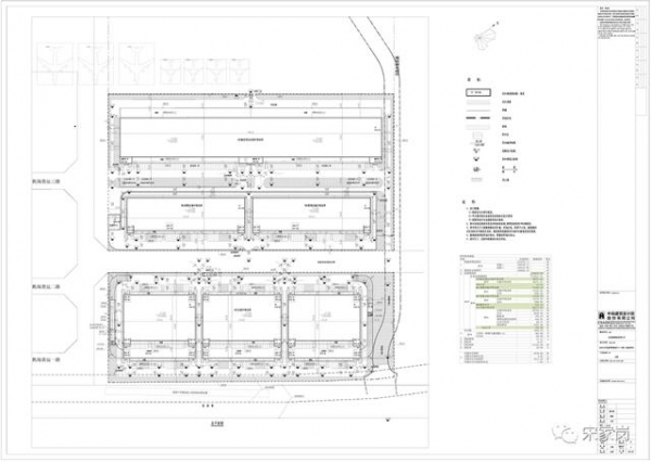
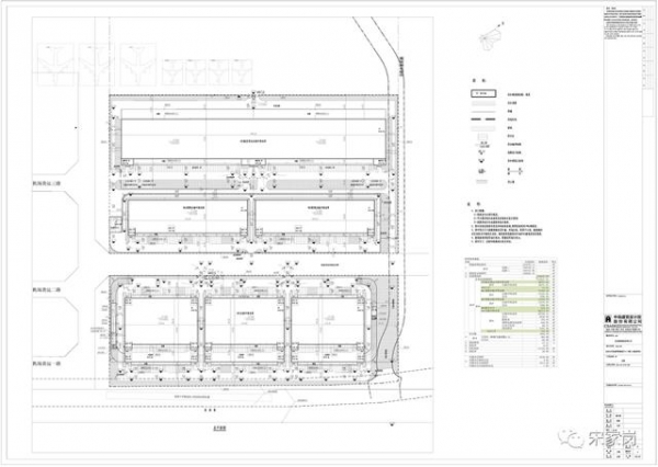
武汉航港物流有限公司拟建设武汉天河机场保税物流中心(B型)及配套项目,位于武汉市黄陂区天河街汉孝城际铁路以西,规划用地性质为出让物流仓储用地,用地面积为254732.11平方米。项目建设规模为7栋1-4层仓库、门卫、海关卡口等,总建筑面积170427.82平方米。容积率0.67,建筑密度47.12%,绿地率20.08%。建筑高度1-4层。
现进行规划(建筑)方案批前公示,公示期为10天,详细方案可登陆武汉市黄陂区国土资源和规划局网站查看。有异议者请于公示期内将书面意见反馈至我局城乡建设规划管理科,联系电话027-61008106。
项目规划方案


关于武汉天河机场保税物流中心及配套项目规划方案的批前公示-2.jpg

延伸阅读

2021年6月2日,武汉市黄陂区自然资源和规划局批复了武汉天河机场保税物流中心(B型)及配套项目建设用地规划许可证,证号:武自规(陂)地[2021]032号建设单位:武汉航港物流有限公司,建设位置:武汉市黄陂区天河街汉孝城际铁路以西 。此举标志着武汉天河机场保税物流中心施工前期手续的重要环节取得重大进展,有望于今年年内开工建设!

关于武汉天河机场保税物流中心及配套项目规划方案的批前公示-3.jpg

(武汉市黄陂区自然资源和规划局官网公告)
此外,据武汉临空投集团官方公众号消息:2021年3月10日上午,湖北机场集团所属物流公司总经理及航港物流公司董事长湛凤鸣一行与武汉临空投集团公司党委书记、总经理黄峰、副总经理程远平及所属产投公司、园道公司主要领导,共同前往武汉空港保税物流中心项目现场进行实地调研。

关于武汉天河机场保税物流中心及配套项目规划方案的批前公示-4.jpg


关于武汉天河机场保税物流中心及配套项目规划方案的批前公示-5.jpg

双方就武汉空港保税物流中心项目的规划、建设等相关问题进行了现场沟通,对项目的未来发展充满了信心,并希望继续加强彼此间的联系沟通,加快推动项目的落地工作,共同推进空港区域产业的高质量发展。
武汉空港保税物流中心项目介绍

根据武汉天河机场总体发展规划及国际货库及配套设施的位置、规模和流程,武汉空港保税物流中心项目规划位于武汉天河机场北货运区。

关于武汉天河机场保税物流中心及配套项目规划方案的批前公示-6.jpg

项目定位为物流产业开发建设,采取租赁+运营服务模式进行项目运营,建成后将重点围绕机场保税物流中心打造以医药产业、生鲜以及跨境电商为主的全链条航空物流生态圈。

关于武汉天河机场保税物流中心及配套项目规划方案的批前公示-7.jpg

项目总投资约20亿元。一期围绕B保打造机场航空物流生态圈,主要规划建设货站区、保税区和非保税区三大区域。规划用地约400亩,总投资约9亿元,总建筑面积约16.7万平米,可用面积达15.2万平米。其中B保规划建设2栋保税仓库,均为单层,总建筑面积约3.3万平米,总投资约2亿元。主要功能包括保税仓储、物流配送、办公(包括保税中心人员办公、海关办公)等。
目前,武汉临空产投公司与普洛斯、机场集团就B型保税项目完成股东方协议、增资认购协议及工商执照变更、合资公司注册资本金认缴等相关工作;项目土地评估已基本完成,相关土地工作全面推进;同时土地规划设计已完成。(以上信息来源于武汉空港新城公众号)
*滑块验证:
您需要登录后才可以回帖 登录 | 注册

本版积分规则

关闭

站长推荐上一条 /2 下一条

QQ|Archiver|手机版|小黑屋|外贸精英网 ( 京ICP备19046145号 )

GMT+8, 2026-1-12 10:36

Powered by Discuz! X3.5 Licensed

Copyright © 2001-2025 Tencent Cloud.

快速回复 返回顶部 返回列表